
冶金起重機/鑄造起重機是冶煉車間的主要生產設備之一,在轉爐車間用該起重機將從高爐車間運來的鐵水倒入混鐵爐及將混鐵爐內的鐵水或從高爐車間運來的鐵水直接倒入轉爐,該起重機設有獨立驅動的主、副小車,主小車設置固定間距的龍門鉤,吊運盛鋼桶。副小車可用來傾翻盛鋼桶或做其他輔助性的吊運作業。該起重機采用封閉的偏軌箱型梁,因此具有良好的垂直和水平剛性。
QB型5-20/5噸防爆橋式起重機

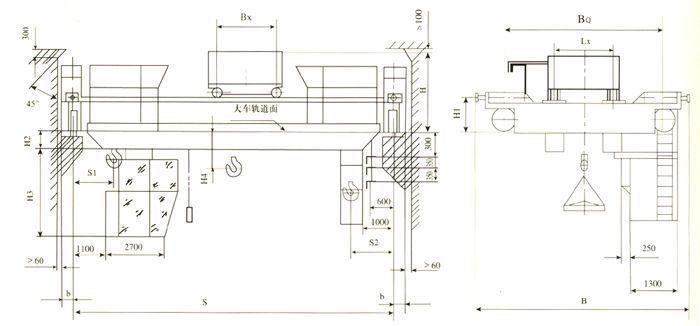
QB型防爆橋式起重機是采用國際先進標準制造的系列產品。整機結構新穎、造型美觀、工藝性好、操作靈活平穩、安全可靠。
主要特點:
(1)橋架采用箱形主梁,自動埋弧焊焊接。
(2)小車導電采用工字鋼軌道電纜導電新裝置,安全可靠。
(3)起升機構根據要求還可設另一套安全裝置。增加可靠性。
(4)零部件標準化、系列化、通用化。
(5)操縱室視野開闊,全部機構均在操縱室內操縱,工作舒適操縱靈活。
本產品廣泛適用于普通重物的裝卸與搬運,還可配以多種專用吊具進行特殊作業,當露用時帶有防雨設備。表中數據為室內起重機用,室外起重機總重和輪壓約增加5%,起重機按使用繁忙程度分為中級(A5)和重級(A6)兩種工作制度。選用時應注明工作制度,工作環境的高、低氣溫及電源種類等技術要求,還可根據用戶要求的跨度設計制造。
2021-1-20 本文被閱讀 3652 次


